Обяви За нас Контакти
Продава КЪЩА
област Перник, с. Големо Бучино
345 000 €
674 761.35 лв.

(1 375 €, 2 689.27 лв./m2)
Не се начислява ДДС
История на цената
Коригирана в 14:16 на 11 ноември, 2025 год.
Обявата е посетена 606 пъти.
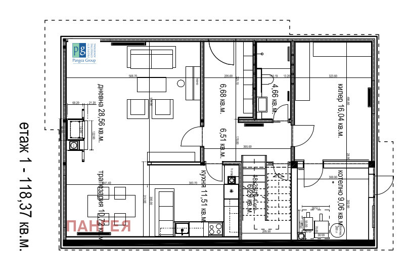
Площ:
251 m2
Двор:
1088 m2
Етаж:
2
Газ:
НЕ
ТEЦ:
Лок.отопл.
Строителство:
Сглобяема конструкция, Въведен в експлоатация 2017 г.

Описание на имота:


Селските къщи започват да стават с високи тавани, с големи стаи и прозорци, дишащи, енергоефективни и със съвременна функционалност!
Пангея груп Ви представя една комфортна семейна къща, кацнала на селския хълм, но на 30 минути от центъра на София и на 10 минути от Перник.
Осъзнаването за леката дървена къща се среща все по-често и по нашите земи. Грамотното съчетаване на дървени, метални и стоманобетонни елементи създава възможност за големи пространства, уют и равномерна вътрешна температура. Гъвкавостта на разпределението и лесната ревизия и промяна на всички инсталация я прави изключително практична.
Професионалния подход към детайла и отговорността към елементите осигуряващи устойчивост тук са заложени и изпълнени предантично.

Поставени са паропропускливи и водонепропускливи мембрани и топлоизолации, където е необходимо. Основите са стоманобетонови, а от източната страна стената е изцяло от стоманобетон, играеща ролята и на подпорна стена. Котелното помещение е изпълнено със стоманобетонова конструкция и керамични тухли.
Изпълнена е отоплителната инсталация, пелетен котел с мощност 20 киловата, с WiFi интернет модул, бункер, италиански алуминиеви радиатори във всяко помещение. Бойлерът е неръждаем 200 л, с две серпентини едната към котелната инсталация, а другата с възможност за добавяне на соларна система. Къщата има енергиен сертификат и по скалата на енергопотребление е определена като B .

Вътрешните и външни дограми са от масивно дърво. Подовете са изпълнени частично: гранитогрес и дюшеме от масивна руска иглолистна дървесина в две от стаите и частично в дневната. За трапезарията и коридора има налично дюшеме от същия тип.

Две от стаите на втория етаж и банята и тоалетната на първия етаж са изцяло завършени. Останалите помещения са с монтиран гипсокартон.

Къщата очаква своите щастливи нови обитатели!

За повече информация моля звъннете на 0878991116.
Виж всички обяви в pangeagroup.bazar.bg или тук
Особености
Сглобяема конструкция
Саниран
За контакт:
0878991116
Агенция:
ПАНГЕЯ
0878991116
ПАНГЕЯ  logo
Медал за прослужено време
В imot.bg от 2006 г.
pangeagroup.imot.bg
Адрес:
област София, гр. София, гр. София, кв. Изгрев, ул. Тинтява 15
ИЗПРАТИ ЗАПИТВАНЕ
ИЗПРАТИ ЗАПИТВАНЕТО

Продава КЪЩА
област Перник, с. Големо Бучино
Обява: 1j175863300278426

345 000 €
674 761.35 лв.
История на цената
(1 375 €, 2 689.27 лв./m2)

Не се начислява ДДС
ЗАПАЗИ ОБЯВАТА

Местоположение: област Перник, с. Големо Бучино